"The Cowboy’s Bar": Jak stworzyć kultowe miejsce w Gdańskich Dokach (Case Study)
W sercu Młodego Miasta, obok tętniącego życiem foodcourtu Montownia, powstaje miejsce, które świadomie łamie schematy. To bar, który odrzucił bezpieczną drogę pizzy i gofrów na rzecz radykalnej, odważnej koncepcji: serwowania wyłącznie alkoholu. Dla inwestora to ryzyko. Dla nas w ARCH-BOOM – idealna okazja, by udowodnić, że najlepsze projekty technologiczne barów rodzą się z odwagi, a zintegrowane podejście do designu i funkcji to klucz do stworzenia miejsca, o którym się mówi.

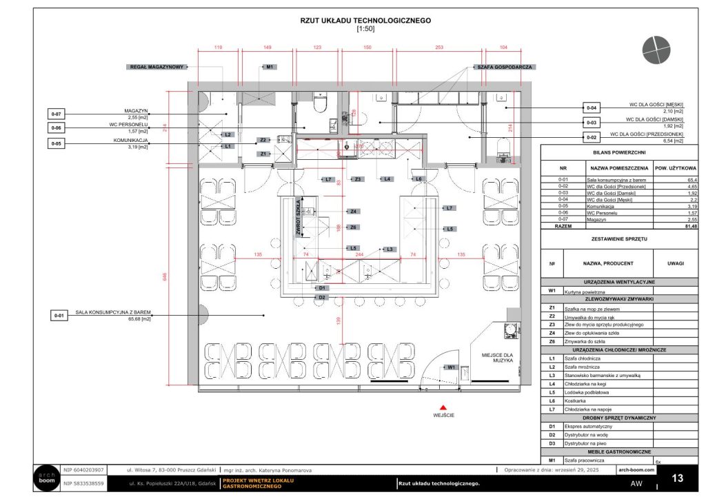
Lokalizacja obiektu budowlanego: ul. Ks. Popiełuszki, Gdańsk
Typ obiektu: Bar alkoholowy
Powierzchnia lokalu: 80 m²
Rok: 2025Kluczowe wyzwanie: Autentyczność zamiast trendów
Autorzy projektu: architekt – K. Ponomarova, wizualizacja – V. DrobzhevZakres opracowania:
– Koncepcja układu funkcjonalnego i aranżacji wnętrz,– Projekt technologiczny,
– Wizualizacja,
– Projekt wykonawczy.
Wyzwanie: Stworzyć ikonę, a nie kolejny bar
Projekt w gdańskich Dokach postawił przed nami trzy fundamentalne wyzwania, które zdefiniowały całą strategię:
- Radykalny model biznesowy: Jak zaprojektować przestrzeń, która w 100% wspiera koncept „alcohol-only”? Wnętrze musiało nie tylko zachęcać do dłuższego pobytu, ale także jego funkcjonalność musiała być w całości podporządkowana kulturze koktajlowej i sztuce barmańskiej.
- Centralny punkt: Inwestor miał jasną wizję – bar ma stać na samym środku lokalu, jako otwarta na wszystkie strony wyspa i scena dla barmanów. To stworzyło ogromne wyzwanie technologiczne: jak doprowadzić wszystkie niezbędne instalacje (wodę, prąd, kanalizację) do serca przestrzeni, nie tracąc ani centymetra i nie zaburzając idealnej geometrii
- Autentyczność zamiast trendów: Jak stworzyć postindustrialne wnętrze, które będzie autentyczne i surowe, a jednocześnie uniknie pułapki powielania modnych, ale oklepanych rozwiązań? Miejsce musiało oddychać historią stoczni, a nie katalogiem wnętrzarskim.
Antidotum na neony: Intymność mrocznego światła
- Podjęliśmy świadomą decyzję o buncie przeciwko wszechobecnym trendom na LED-y i neony. Oświetlenie całego lokalu oparliśmy na ściemnionych, szklanych lampach w kształcie kul. Tworzy to mroczny, ale jednocześnie niezwykle intymny i kinowy klimat. Światło nie zalewa przestrzeni, lecz delikatnie ją rzeźbi, wydobywając faktury materiałów i tworząc przytulne enklawy. To właśnie ten klimat sprawia, że goście chcą zostać dłużej, a bar wyróżnia się na tle jaskrawej konkurencji jako oaza spokoju i dobrego smaku.
- Autentyczność: Beton, blacha i drewno z odzysku
Autentyczność wnętrza zbudowaliśmy na trzech filarach materiałowych:
– Betonowe lastryko na podłodze: Nowoczesne, ale nawiązujące do estetyki minionych dekad.
– Ornamentowa blacha na ladzie baru: Surowa, ale z nutą zdobniczego detalu.
– Drewno z odzysku: Każda deska nosi w sobie historię, dodając wnętrzu ciepła i niezaprzeczalnej prawdy materialnej.
Ta kombinacja sprawia, że wnętrze jest szczere. Nie udaje niczego. Jest dokładnie takie, jakie powinno być miejsce narodzone w sercu gdańskiej stoczni.
Strategia: Fuzja technologii, sztuki i klimatu
Nasza odpowiedź była prosta: projekt technologiczny i aranżacja wnętrz muszą być jednym, nierozerwalnym procesem. To jedyny sposób, by zrealizować tak ambitną wizję.
- Bar w sercu przestrzeni: Dowód na synergię projektową
Centralne umiejscowienie baru stało się dowodem koronnym na skuteczność naszego podejścia. Zamiast projektować aranżację i „wciskać” w nią technologię, odwróciliśmy proces.
Cały układ lokalu, włącznie z zapleczem, został podporządkowany jednemu celowi: aby bar mógł stanąć dokładnie na środku.
To mistrzostwo w planowaniu przestrzennym, gdzie każdy centymetr zaplecza i każdy przebieg instalacji został zoptymalizowany, by serce lokalu mogło bić w idealnym miejscu. -
Artystyczny industrializm: Półka na przełomie epok
Wieńcem całej aranżacji jest spektakularna, rzeźbiarska półka zawieszona nad barem. To nie jest zwykły regał na butelki. To manifest artystyczny. Wyobraziliśmy sobie artystę, który przez lata tworzył misterne, eleganckie formy w stylu Art Deco dla zamożnych mecenasów, a nagle dostał zlecenie od surowej, industrialnej fabryki. Jeszcze nie zdążył zapomnieć o pięknie i finezji, ale już musiał pracować w stali i siatce. Efektem jest właśnie ta półka – surowa w materiale, ale wciąż artdecowska w duchu i formie. To ona nadaje wnętrzu unikalny, artystyczny charakter i opowiada historię o przełomie epok, tak bliską historii gdańskich doków.
Znajdziemy sposób, by ją urzeczywistnić
Dzięki zintegrowanemu podejściu, gdzie projekt technologiczny baru był punktem wyjścia dla całej aranżacji, osiągnęliśmy wszystkie cele:
-
Stworzyliśmy unikalne miejsce docelowe, które przyciąga gości swoją odważną koncepcją i niepowtarzalnym klimatem.
-
Zapewniliśmy idealnie funkcjonalną przestrzeń, która jest ergonomiczna dla barmanów i pozwala na obsługę na najwyższym poziomie.
-
Zbudowaliśmy autentyczną markę, której wnętrze jest najpotężniejszym narzędziem marketingowym, generującym organiczny rozgłos.
Ten projekt to dowód, że najtrudniejsze wyzwania technologiczne rodzą najbardziej spektakularne i dochodowe koncepty.
Jeśli szukasz partnera, który potrafi połączyć inżynierską precyzję z artystyczną wizją – zapraszamy do rozmowy.
Toaleta jak zwiastun filmowy: Kwintesencja koncepcji
Często pomijanym, a dla nas kluczowym elementem budowania doświadczenia gościa, jest łazienka. W tym projekcie potraktowaliśmy ją jak zwiastun filmu pełnometrażowego.
To pomieszczenie jest soczewką, w której skupia się całe DNA lokalu – jest jego esencją zamkniętą na kilku metrach kwadratowych.
- Skondensowana narracja:
Wnętrze toalety opowiada tę samą historię co sala główna, ale z większą intensywnością. Surowy, betonowy sufit przypomina o industrialnym szkielecie budynku, podczas gdy ściany wyłożone dekoracyjnymi płytkami imitującymi starą, tłoczoną blachę w miedzianym odcieniu, wprowadzają element szlachetnego rzemiosła. -
Detale budujące prestiż:
Ciemna boazeria blaszana i ciężka, miedziana umywalka w formie misy to ukłon w stronę klasycznej elegancji. Całość dopełniają kinkiety z materiałowymi abażurami, dające miękkie, ciepłe światło – dokładnie takie, jakie panuje przy barze. -
Spójność:
Gość wchodzący do toalety nie opuszcza świata marki.
Przeciwnie – zanurza się w nim jeszcze głębiej. To dowód na naszą dbałość o każdy detal i sygnał dla klienta, że jakość jest tu standardem, a nie fasadą.
Zobacz nasze inne projekty dla branży HoReCa:
Polecane artykuły:
- Światło, które sprzedaje: Kompletny przewodnik po oświetleniu neonowym w gastronomii
- Marketing wizualny w gastronomii: 5 sposobów na stworzenie 'Instagrammable’ wnętrza
- Vibe Dining: Co to jest i dlaczego ten trend zmienia polską gastronomię?
- Koncepcja kuchni a projekt technologiczny?
- Sharing Plates: Jak ta koncepcja kulinarna wpływa na projektowanie i zyski restauracji